86 Burnbank Way, Mount Barker
$695000- Bedrooms: 4
- Bathrooms: 2
- Car Spaces: 5
- Property type: House
- Land size: 1530 sq metres
- Listing type: For Sale
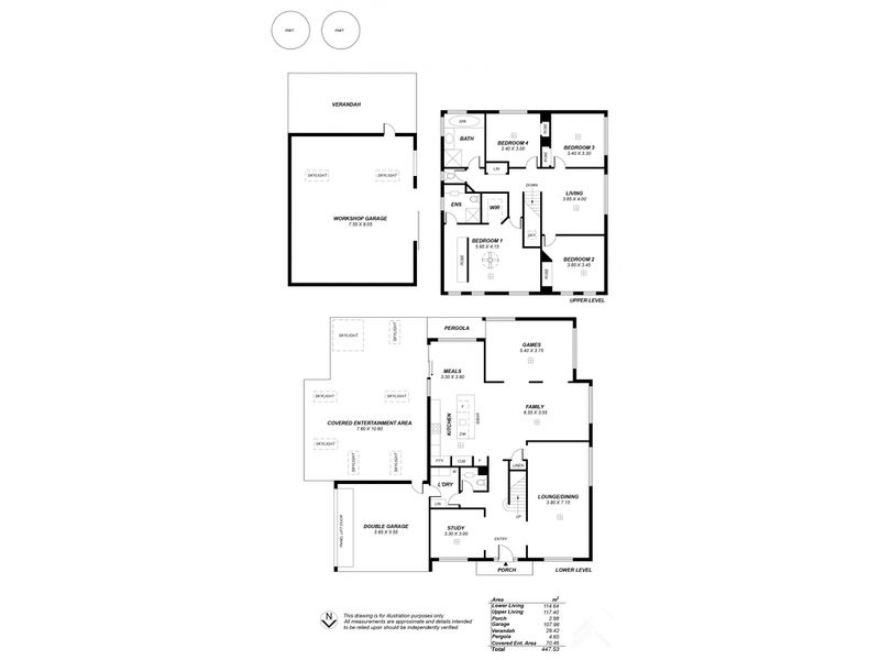
Admired for Her Style, Practicality and Position – 1530 sqm Corner allotment
CALL SANDRA BERRY (0437 039 005) TO ARRANGE YOUR PRIVATE INSPECTION
Surrounded by Romanesque style gardens taking in scenic views from a slightly elevated position, this elegant family home offers the perfect blend of outdoor and indoor living, bedroom accommodation and home office facilities.
Divided into 10 main rooms the versatility of the home is exceptional.
Currently serving as four bedrooms and home office, upper level lounge, ground floor family room, formal lounge and dining, casual meals and a rumpus room. the home could easily accommodate a fifth bedroom if required.
The home offers a family bathroom with spa, guest powder room and master with ensuite and walk in robes.
The stylishly renovated kitchen sits perfectly positioned to overlook all entertaining areas including the very private flag stone paved outdoor room.
The near level 1591 square metre allotment provides easy access to automatic double garaging under the main roof and a separate triple bay workshop fit for secure storage of recreational toys.
The stunning grounds are watered by a substantial rain water supply in addition to mains. The home is protected by a security system and temperature controlled via ducted air conditioning.
Situated on the corner of Burnbank Way and Tremayne Drive, the property is centrally positioned in the Martindale Estate. It is protected from freeway noise and offers a swift minute commute on to the South Eastern Freeway from Bald Hills Road.
A well-appointed family home in close proximity to Cornerstone College and Saint Francis De Sales and approximately 40 minutes to Adelaide CBD.
ADDITIONAL FEATURES
- Ducted Cooling
- Ducted Heating
- Outdoor Entertainment Area
- Remote Garage
- Secure Parking
- Shed
- Alarm System
- Broadband Internet Available
- Built-in Wardrobes
- Dishwasher
- Rumpus Room
- Study



