18 Johns Lane, Hahndorf
Contact for price- Bedrooms: 4
- Bathrooms: 1
- Car Spaces: 2
- Property type: House
- Land size: 894 sq metres
- Listing type: Sold!
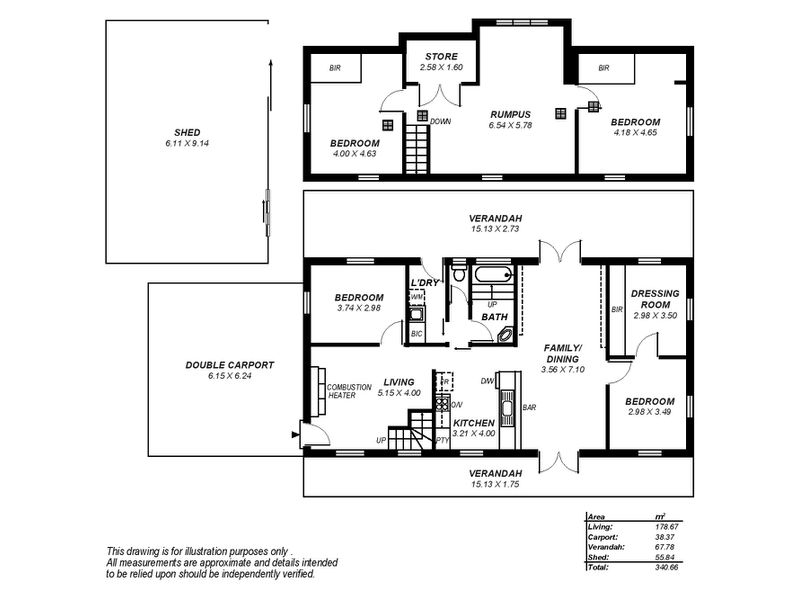
4 bedrooms & 3 living areas, freshly polished floorboards & interior paint - Edge of Hahndorf Village - 20 to 25 mins to city
Kids and guests will love their own private space in a light and airy upper level family room with freshly polished floorboards and newly painted walls. Not to mention the delightful outlook available from the 2nd storey picture book windows.
Plenty of room throughout and lots of quaint cottage character - such as colonial and dormer windows, French doors, raked ceilings and an exposed brick feature chimney. Still with scope to add your very own decorating style transforming both levels into cosy comfort zones for your family and or guests.
Comprising of 4 bedrooms including a lower level master bedroom and separate dressing room with potential for an en-suite bathroom, a second bedroom adjacent the formal sitting room, an open plan lounge/dining room overlooked by a country kitchen, two other upper level bedrooms both with built-in robes lead off the well proportioned upper level rumpus/family room.
On the outside you will a solar panels, a shady front and rear verandah, a double carport, rear workshop/storage shed and a smaller tool/utility shed. A sun-drenched private level garden is located at the eastern side of the home while a small number of steps lead to the sheds at the rear.
Located on an approximate 894sqm block within easy walking distance to the cafes, resturants, shops, Public Transport, facilities and other attractions of Hahndorf's Historic Main Street.
Hahndorf is approximately 20 - 25 minutes from the City via the Southern Expressway. It is renown for Tourist shops, galleries and other attractions, but is also the home of a well-established community of local residents. Behind the Tourist strip you will find a residential zone that is then buffered by peaceful rural holdings, acres of pristine farmland and vineyards for which the Adelaide Hills is well known. There is one public and one private Primary School located in Hahndorf with several High Schools and a TAFE located at near-by Mount Barker. While public buses to either Mount Barker or the City can easily be caught from Hahndorf's Main Street.
A versatile home that is well worth your inspection.
Features and Benefits Include-
Mains water supply
Fresh painted interior walls
Polished floorboards
Solar system
Four bedrooms & 3 living areas including upper level family room
Plenty of cottage style such as French doors, raked ceilings, Colonial windows etc
Open plan lounge/dining room
Kitchen with dishwasher
Toasty combustion heater
Bayonet fittings for portable gas heater
Ducted evaporative cooling on the upper level
Rear Colourbond workshop/shed with concrete floor
Utility/garden shed
Sunny level side garden
Double carport
Shady front and rear verandah
Upper level views over Hahndorf
894sqm block
Close to Main Street of Hahndorf
ADDITIONAL FEATURES
- Evaporative Cooling
- Shed
- Built-in Wardrobes
- Dishwasher
- Floorboards
- Rumpus Room
