10 Windmill Lane, Totness
Contact for price- Bedrooms: 3
- Bathrooms: 3
- Car Spaces: 18
- Property type: Farmlet
- Land size: 73900 sq metres
- Listing type: Sold!
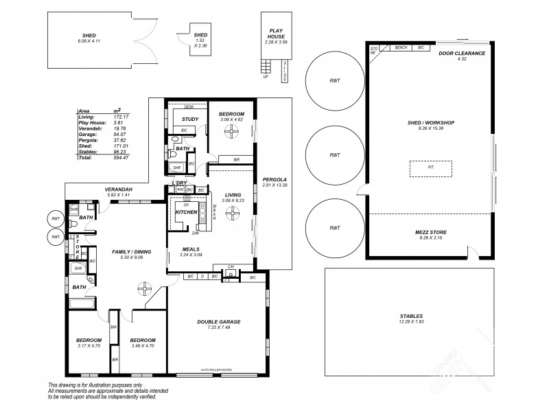
18 acres, 4.32m high clearance workshop, vehicle turning area & 3BR + study family friendly residence - Mins to Hahndorf/Freeway
Under offer - Open inspection for 7th April has been cancelled.
Live, work and play all at this approximately 18 acre property located within minutes of the freeway, Hahndorf and the growing hub of Mount Barker.
Imagine . . . how much you can save on commercial leasing costs by combining work with family friendly living in an all-encompassing fully fenced residence on your very own rural estate.
With a massive workshop, dams, rainwater tanks, former horse riding arena and stable this property is well equipped for you to operate your business while living a quality lifestyle on-site.
The roomy residence is sited to make the most of out-standing views across to Littlehampton, Mount Barker and beyond. It currently comprises of 3 bedrooms, a smart dedicated home office (formerly the 4th bedroom), an open plan lounge/dining room overlooked by the kitchen, a separate rear family room, 3 handy bathrooms and a double garage under the main roof with internal access.
The garden that surrounds the home is grassy, level and fully fenced. It provides a safe haven in which the kids and their pets can play while being contained.
The home, stables and the workshop are watered by multiple, near new rainwater tanks collecting from all significant infrastructure.
Previously used for ponies, the land offers an extensive area for working horses (formerly a sand based arena), a traditional stable and shearing shed plumbed with water and connected to power.
Impressive in size and presentation the 9.26 x 15.38 metre work shop has a 4.32 metre clearance, a 9.26 x 3.15 metre storage mezzanine, work pit, 3 phase power and office storage. The facility has been used for an Earthmoving Contractor in the past and more recently upgraded for use as a Cabinet Making business and would be ideally suitable for a number of pursuits requiring the use of large vehicles, plant and equipment. Subject to Appropriate Council Consents.
Positioned between Mount Barker, and Hahndorf in the hamlet of Totness, the property has a handy address for both work and play, is convenient to schools, shops and public transport within 200 metres of the driveway. The freeway entrance to both Murray Bridge and Adelaide is within 2 minutes drive.
If you’re looking for a high profile, convenient home business combination to minimise the cost of doing business, 10 Windmill Lane is an attractive well-presented property with a great deal to offer.
External Features:
72,000 litres of rainwater storage
2 x dams plus additional 10,000 litres of dam water storage (1 feeding the grounds, the 2nd for livestock only)
2nd driveway providing access to the rear garden
Separate single garage near to the home
Stable/hay shed
Grazing land used in the past for hay-baling
Established veggie patch
Hand built cubby-house with swings and a slippery dip
Dam fed troughs for livestock
Internal Features:
Smart renovated study/home office with built-in filing draws, storage cupboards and a built-in 'Corian' topped desk
Freshly renovated store room with new built-in cupboards and bench-space
Beautifully renovated laundry with modern floor-to-ceiling floor tiles and new built in storage cupboards
Recently installed Bosch Dishwasher
Two built-in linen presses separate to the laundry
Abundance of built-in storage space
Sliding doors that lead out to the paved pergola area
Combustion heated lounge/dining room
Ceiling batts insulating the main house
High raked ceiling
Recently laid carpet, downlights and new built-in robes installed in the double bedrooms 2 and 3
Auto roller door to double garage
ADDITIONAL FEATURES
- Outdoor Entertainment Area
- Remote Garage
- Secure Parking
- Shed
- Broadband Internet Available
- Built-in Wardrobes
- Dishwasher
- Study
- Workshop
- Water Tank
